物件番号:R5.5.31
- 一戸建て
- 府中市
府中市木野山町 中古住宅 木造平屋建て
府中市木野山町759
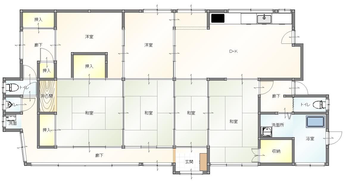
- 間取り
- 6DK
- 価格
- 750万円
設備
井戸水、単独浄化槽
物件情報
- 交通
- 中国バス 木野山バス停より徒歩5分
- 土地面積
- 1307.49㎡
- 建物面積
- 141.83㎡(42.90坪)
- 駐車場
- 5台
- 構造
- 木造平屋建て
- 地目
- 宅地・畑
- 現況
- 空家
- 都市計画
- 都市計画区域外
- 土地権利
- 所有権
- 道路
- 南東
- 引渡し
- 相談
- 備考
- ・全6筆 ・築年月不詳 ・附属建物あり(離れ1棟、物置2棟、納屋1棟)
















